

MODHAUS
OAA Student Excellence Award 2018
Teammate: Chelsea Carcone, Joses Tsoi,
Nick McGoey.
​
Type: Architectural, Residential
Location: Toronto, ON
Timeline: April - September 2017
​
Tools: AutoCAD, Revit, Photoshop, Illustrator,
InDesign, Lightroom, Twinmotion
​
MODHAUS, located in the Harbourfront neighborhood of Toronto, is a towering condominium complex that exemplifies innovative concrete construction and sustainability practices in large-scale projects.

The design for Modhaus was inspired by the exploration of geometric shapes and forms. The three elements of the structure – the base, the tower and the roof – work together to create a unique harmony that offers a highly functional yet visually engaging structure.
The finishes were chosen to be low VOC with occupant’s long-term health in mind.
Modhaus embodies the concept of urban intensification by fostering a dynamic vertical community that accommodates a diverse population.


LEVEL 1 - GROUND FLOOR PLAN



LEVEL 3 - AMENITIES FLOOR PLAN



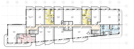
LEVEL 6 - TYPICAL UNIT FLOOR PLAN



LEVEL 11 - PENTHOUSE FLOOR PLAN
A mechanized louvered trellis covers the roof and adjusts to each season.
Tesla glass solar tiles inlaid on the wide plane capture solar energy.
During the summer, the panels close over to provide passive shading.








